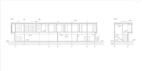
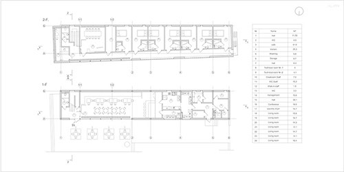
architecture
interior
furniture
ergonomics
industrial design
contacts
architecture
B&W