H37

Описание:

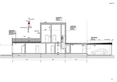
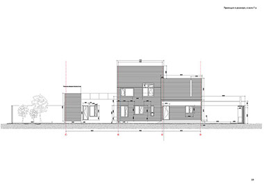
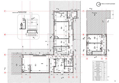
       Задача - дом для семьи из 4 человек до 249 квадратных метров полезной площади. Необходима парковочная зона на 2 транспортных средства, так же гостевые парковочные места, из-за расположения дома вдоль дороги. Нужна большая гостиная-кухня, так как много друзей и общения. Это поспособствовало разделению блоков "спокойного" от "активного", между которыми- блок с обслуживающей техникой.

 Дом вытянутый, ориентирован остеклением на юг, а к северу- коридорами, это повышает эффективность энергии тепла. Конструкция "СИП" панели на винтовых сваях.

  Второй этаж- это уже эстетическая необходимость заказчика. В закрытом блоке второго этажа находятся кабинет и мастерская с выходом через коридор на террасу с цветником.